【リノベ】空気が通り抜ける心地よい快適在宅勤務!寝室をワークスペース付にリノベ&オンオフできる工夫も!
こんにちは世田谷支店の會田です。
最近、在宅勤務の方も増えていますよね?
そのため自宅で快適に仕事が出来るようにリフォームされる方が増えています。
今回は自宅を在宅勤務に適した環境にリノベした事例についてお話させて頂きます、参考にして頂ければと思います!
目次
1.リノベーションのきっかけ
今回の事例は、ご自宅の問題解決のために全面リノベされました!
・在宅勤務になり、生活環境が激変し、現在の自宅で仕事をするには不適切な環境のため、解決したい
・書斎の狭さを、解決したい
・書斎の北側窓が小さく暗いことを、解決したい
・北側窓の激しい結露と室内空気環境の悪さを、解決したい。
・室内移動時にドアを何度も開け閉めするストレスを、解決したい。
と、思われたのがリノベーションのきっかけとなります。
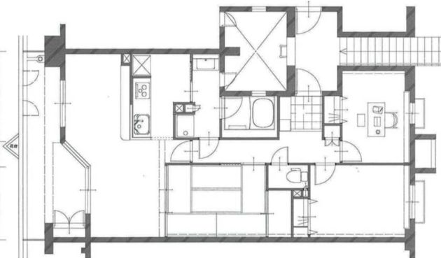
2.「 【リノベ】空気が通り抜ける快適在宅勤務!」のBeforeAfterの間取り
まず、Beforeの間取りは、こちらとなります!
家族構成は、1人家族
築20年

そして、 Afterの間取りは、こちらとなります!

3.「 【リノベ】空気が通り抜ける快適在宅勤務!」のリノベポイント
リノベポイント①は、「自宅でワケーション」です!

勤務中も、南北からの心地よい空気の流れを感じながら、外の景色も見えるようにすることで、ワケーションの様に、快適に仕事ができる環境へとリノベしている点となります。
ワークスペースからのお写真はこちらとなります!

空気が通り抜ける快適な在宅勤務なら、
自宅にいながらワケーションの様な環境で、
仕事効率も上がりそうですよね!
リノベポイント②は、「気分も明るくなるワークスペース」です!
こちらがBeforeAfterのお写真です!

2部屋を繋げたことで、気分も暗くなりそうな書斎から、
2つの窓より採光が入る明るいワークスペース付の寝室へと、
リノベした点となります。

効率アップできそうな明るく広いワークスペースになりましたね!
リノベポイント③は、「オンオフの工夫」です!
こちらがBeforeのお写真です!

こちらがAfterのお写真です!

キッチンを移動してリビングを明るく広くするとともに
リビングの一部に小上がりと趣味の楽器を練習するスペースを作ることでオンオフができる様にリノベした点となります。

4.お客様の感想
・家の動線がシンプルになり楽に暮らせています。
・とても暗かった書斎が、寝室と繋がったことで明るくなり嬉しいです。
・風通りがよくなり、在宅勤務中も新鮮な空気が感じられるようになり快適です。
・使い勝手がよくなり満足しています。
と、嬉しいご感想を頂きました!
5.まとめ
風と明るさを感じられる楽しく快適な在宅勤務をされていらっしゃる様子が伝わってきます。
1.リノベーションのきっかけ
2. 「 【リノベ】空気が通り抜ける快適在宅勤務!」のBeforeAfterの間取り
3. 「 【リノベ】空気が通り抜ける快適在宅勤務!」のリノベポイント
4.お客様の感想
5.まとめ
あなたが生活の中でお困りの事をリフォームの専門家に話しながらより素敵なリフォームをして頂ければ嬉しいです!
土屋ホームトピア世田谷支店は、田園都市線「用賀」駅徒歩3分。カフェのような雰囲気でご相談いただけます。
■土屋ホームトピア世田谷支店
https://www.hometopia.jp/branch/setagaya/
* * * * * * * * * * * * * * * *
■メールでのお問い合わせ
https://www.hometopia.jp/contact/inquiry/
================================
㈱土屋ホームトピア 世田谷支店
東京都世田谷区用賀2丁目35-6 松忠ビル1階
https://www.hometopia.jp/branch/setagaya/
================================

この記事が気に入ったら「いいね!」しよう
最新リフォーム情報をお届けします♪







