2階リビングへのリノベーション事例!1階の寒い、暗いLDKから2階のLDKに間取り変更して、明るくあたたかくなったリビングのご紹介!
こんにちは!!!
デジタルソリューション課の織江です。
今日はですね~
LDKを一階から二階に間取り変更したリノベ
事例となります。1階が暗い、寒いなど
お悩みの方必見となります。
今回は【知らなきゃ損!】2階リビングへのリノベーション事例!
1階の寒い、暗いLDKから2階のLDKに間取り変更して、
明るくあたたかくなったリビングのご紹介!
目次
1:リノベーションのきっかけとリノベ前の間取り
家族構成:母+娘
築年数:41年 18坪の家
構造:木造二階建て
◆リノベーションのきっかけ:
お母様が一人住まいになった生家(せいか)に
娘さんが同居するためリフォームをすることに、
収納のためのロフトも希望。

1階のキッチンダイニングと和室(茶の間)は寒くて暗い
玄関位置も自転車を置いてから遠い
玄関も廊下も暗い
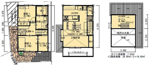
2:リノベーション後の間取り
・2階をワンフロア―にしてLDKを新設
・天井を吹上天井にしてロフトを新設
・1階の寝室は玄関とホールで母と娘のプラベートを確保
・玄関位置を変更して自転車を置いてすぐ玄関

3:外観のビフォーアフター
◆リノベーション前の外観 41年前の狭小地で18坪の建物の外観
左側が南なので 暗い、寒いの理由がわかりますね
2階は日が当たっているのが確認できますね。
当たり前に思われるかもしれませんが、このような状況確認が大事

◆それでは、リノベーション後の外観をみてみましょう! どん!
・南側の屋根を法的斜線(ほうてきしゃせん)
を守りながら屋根を半分かけ替え。
元々の屋根を切り妻(きりずま)屋根から
片流れ屋根(かたながれやね)に変更で小屋裏スペースの確保

写真左の玄関アプロ―チがスロープになってますね。
これは自転車を置くのも楽になりますね~
お隣の日照を確保するため北側斜線など
地域によって高さや斜線の制限があります。
4:1階のLDKから2階LDKへの間取り変更
リノベ前の1階のLDKこれはキッチンにある
ダイニングテーブルのところですね
奥に和室が見えてますが、(昔は茶の間(ちゃのま)といって
家族が食事したり団らんする場所で現在のリビングになります。)
確かに 奥の茶の間は日当たりが悪そうですね~

リノベ後は、2階をワンフロア―にしてLDKを作ってみました。
それでは見てみましょう!キッチン側からリビングを見ると。
明るくなりました~ 少しわかりずらいですが写真左上は吹上で高く
なっています。
(下の写真)通常は天井裏に隠れている火打ち梁(ばり)クロスで化粧
梁は昔のままで塗装しておしゃれに

リビング側からキッチンを見ると。

・既存の太鼓梁(たいこばり)をいかしてダクトレールとスポット
ライトを設置→※丸太をあらわしにした梁(はり)を
太鼓梁(たいこばり) 丸太梁(まるたばり)
・吹上天井にしてロフトも作ってますね~
天井が高いと、とても広く見えますね。
ダイニング側からTVボード側を見ると。

5.本日の結論で~~す!
①2階リビングにすると寒い・狭い・暗いを改善できる
②二階のLDKは、健康寿命を延ばすことにもつながる。
※100歳以上長生きの方は、2階寝室が多いデーターより
③狭小地の住宅は、空間を最大限利用する
④玄関位置の変更で運気も使い勝手も変わる
⑤屋根の形を変えることでロフトを作ることができる
本日は以上です。
◆創業40年:全国31拠点で
64,000軒のリフォーム実績
株式会社 土屋ホームトピア
フリーダイヤル 0120-093-033
http://www.hometopia.jp/
◆お近くの支店
https://www.hometopia.jp/branch/
◆世田谷支店
東京都世田谷区用賀2丁目35-6 松忠ビル1階
https://www.hometopia.jp/branch/setagaya/

この記事が気に入ったら「いいね!」しよう
最新リフォーム情報をお届けします♪











