Data
- 家族構成
- 奥様
- 築年数
- 40年
- 構造
- 木造在来2階建
- 工事面積
- 41.38㎡
- 施工期間
- 45日間
- 工事費
- 1,160万円
リフォームのきっかけ
足腰が弱くなってきたので、階段の登り下りを簡単に出来るようにしたい。室内の印象が暗いので、明るい内装に変えたい。冬場の寒さを解消したい。
プランナーからのコメント
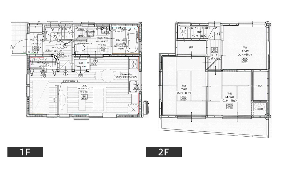
ご要望に対して、階段の架け換えや手摺りの設置なども検討したが、これからお年を召される事から1階だけでの生活をご提案。水周りも―つにまとめて将来的な介護などにもスムーズに対応出来るように配慮しました。湿気や臭気に対しては壁に使った建材で対応。断熱改修に合せて、オール電化でのリフォームでランニングコストの低減も図りました。内装は単調になりすぎない様にアクセントでタイルを使用したり、照明器具や配灯でアクセントをつけ、ご高齢なお客様にもっと元気になって頂ける様に工夫をしました。ワンルームマンションをイメージし、これからの日本社会に対応する高齢者一人世帯の戸建て住宅リフォームになったかなと思います。
リフォームした部位
-
- 部位
- LDK
ベッド・TV・視線・圧迫感・通り易さなどを確認し腰壁を施工。
-
- 部位
- LDK
対面ではないがお客様のご希望でクリスタルカウンター。
-
- 部位
- LDK
-
- 部位
- 寝室
狭いが小柄なお客様には「丁度良い」との事。
-
- 部位
- 洗面脱衣室・トイレ
臭気に対しては壁に使った建材で対応。
-
- 部位
- 洗面脱衣室・トイレ
階段下は洗濯機スペース。
-
- 部位
- ホール
ガラスブロックとハイサイドライトで明かり取り。
-
- 部位
- 外観
-
- 部位
- 玄関


施主様のご感想
1階だけでの生活になり、階段の上り下りが少なくなって楽になりました。床下にも断熱材をたくさん入れて頂けたので冬場でもぜんぜん寒くないです。何よりも内装が明るくなって、気持ちも清々しくなり、毎日家で過ごすのが楽しくなりました。