Data
- 家族構成
- 大人2人
- 築年数
- 30年
- 構造
- 木造在来
リフォームした部位
-
- 部位
- リビング
数年前から奥様が認知症とパーキンソン病を患い日常生活全般に渡って介護が必要となりました。介護保険を使いケアプランを立て、週に何度かホームヘルパーにお願いしたり、デイサービスに行ったりしていましたがやはり日常で(特に夜中)介護をするのはご高齢のご主人。少しでも介護しやすく、また、ご夫婦がお好きだったクラシックが聞けるクラシカルな空間にするのが希望でした。
-
- 部位
- リビング
数年前から奥様が認知症とパーキンソン病を患い日常生活全般に渡って介護が必要となりました。介護保険を使いケアプランを立て、週に何度かホームヘルパーにお願いしたり、デイサービスに行ったりしていましたがやはり日常で(特に夜中)介護をするのはご高齢のご主人。少しでも介護しやすく、また、ご夫婦がお好きだったクラシックが聞けるクラシカルな空間にするのが希望でした。
-
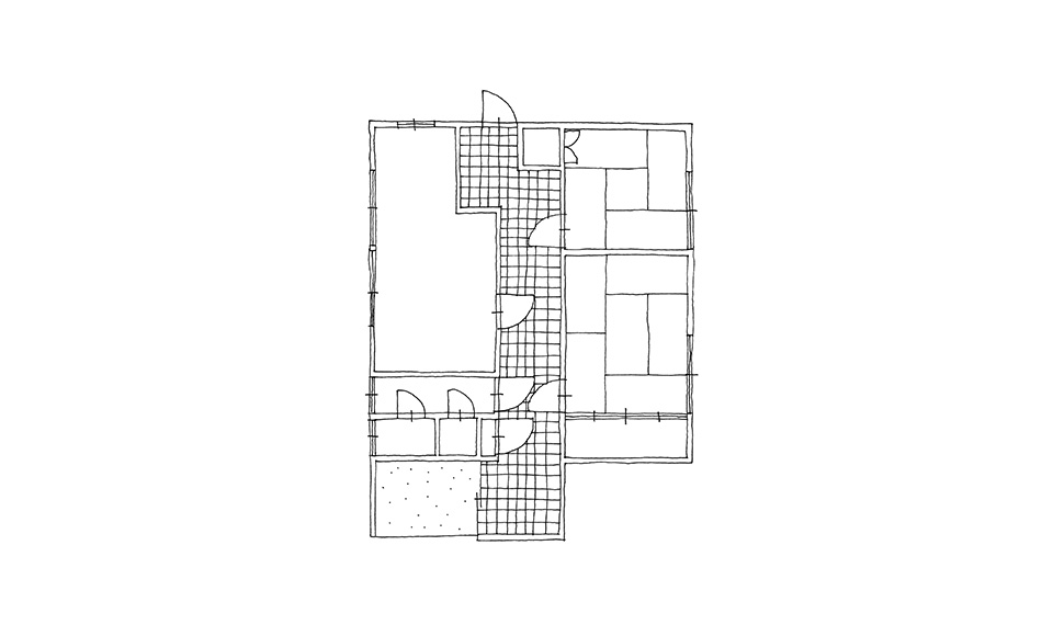
- 部位
- トイレ
貸し部屋だったために共同トイレだったスペースを中の仕切りを取り払い洗面とトイレを1つにして空間に余裕を持たせ介護の省力化を図ることもできました。現在は奥様と一緒にクラシックを聞いていますがいずれは壁に大きなスピーカーを取り付けコーヒーを飲みながらゆっくり過ごせるようにしたいともおっしやっていました。

