Concept
ずっと夫婦円満の家
Data
- 家族構成
- ご夫婦
- 築年数
- 26年
- 構造
- 木造2階建
- 工事面積
- 75㎡
- 施工期間
- 3か月
- 工事費
- 1,500万円
リフォームのきっかけ
個性的なのはよかったが、室内が暗い。特に冬は屋根からの落雪で窓がふさがり真っ暗、夏は蟻に悩まされ、排水がつまるなど、老朽化がピークに達した。
・屋根の落雪の量が多く窓が塞がる。どうにかしてほしい
・1階に将来寝室として使える部屋が欲しい。
・主人が毎週釣りに出かけるが、その処理で家中生臭くなる。道具の量も半端ではない、これを解消したい。
・とにかく明るくしたい。屋根とキッチンはオレンジ色に。
プランナーからのコメント
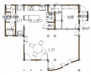
・ライフワークである釣りの道具で生活空間が侵食されていた為「夫婦の快適指数を同じに」をコンセプトに、最小限の1階増築を提案。大型流しと換気設備完備の釣り部屋は、後の寝室として使用できる形に。
・既存の複雑な屋根形状を、無落雪の流れ屋根に整え雪の悩みを解消。低い土間床ゆえの排水管の勾配改良、積雪および耐震補強など、意匠と性能のバランスを考慮しました。
・施主様の意思と健康を配慮した「明るく元気になれる」色彩設計を目指しました。
リフォームした部位
-
- 部位
- リビング
-
- 部位
- キッチン
-
- 部位
- キッチン
ダイニング側から
-
- 部位
- 釣り部屋
大型流しと換気設備完備
-
- 部位
- 洗面脱衣室
-
- 部位
- トイレ
-
- 部位
- 玄関
再利用のガラスブロックがポイント
-
- 部位
- 外観全景
-
- 部位
- 外玄関
-
- 部位
- 外観庭側
-
- 部位
- 外観庭側
-
- 部位
- 外観庭側
-
- 部位
- 外観庭側


施主様のご感想
とにかく明るい家になった。喫茶店のような家にしたかったので実現できて嬉しい。主人は以前にも増して釣りに没頭している。心配していた冬も、雪で窓が塞がることはなくなり、とても快適。