Data
- 家族構成
- 2人
- 築年数
- 49年
- 構造
- 木造
- 工事面積
- 約90㎡
- 工事費
- 800~1,000万円未満
リフォームのきっかけ
子ども達が巣立ち夫婦2人の生活になり住環境を見直したい
希望は3点
①対面キッチンにしたい
②これから始めるピアノを置くスペースが欲しい
③居心地の良い家にしたい
プランナーからのコメント
- 札幌中央支店
プランナー - 錠者尚子
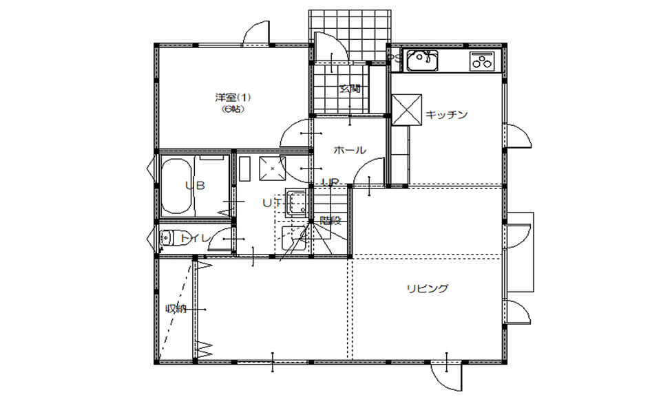
既存間取りの課題であった収納不足を解決するため、ホールと玄関の壁を45cm移設。
これにより、ゆとりある通路スペースと大容量の収納棚が確保。
最近流行のⅡ型キッチンを採用して問題解決しました。
窓位置は変更していませんが以前より明るいキッチンを実現。
正面には愛猫の様子を見守れる「キャットウォーク」を新設し、家事効率と家族(ペット)の豊かなつながりを両立させた設計としました。
リフォームした部位
-
- 部位
- キッチン
家事動線が改善
愛猫を見ながらお料理ができるキッチンになりました -
- 部位
- キッチン
奥行45cm収納は家電が置ける大容量の収納棚
-
- 部位
- ダイニング
おもてなしができるダイニングスペース
-
- 部位
- リビング
キャットウォークがあるリビング
-
- 部位
- リビング
リビングの吹き抜けと奥はグランドピアノが置けるステージ
-
- 部位
- リビング
リビングの一角には猫ちゃん専用お砂置き場
-
- 部位
- 玄関
奥行45cm収納力たっぷりのオープンなシューズラック


施主様のご感想
部屋が明るくなりました
長年暮らした家には、思い出とともにモノも増えていました。
リフォーム後、豊かに暮らすために友人に協力してもらい思い切って不用品を手放してみたら驚くほど清々しい空間が広がりました。
すっきりした住まいでの新しい暮らしは片付けさえも楽しい。
不思議なことに、窓の位置は変わっていないのに、以前より部屋の中がパッと明るくなりました。