Concept
書斎スペース・リビングプランのプラスアルファの提案で想像以上の家に
コンクール受賞歴
2012年 ジェルコリフォームデザインコンテスト北海道支部 優秀賞(リビング・ダイニング)
Data
- 家族構成
- 父+ご夫婦+子供
- 築年数
- 20年
- 構造
- 在来木造
- 工事面積
- 54.09㎡
- 施工期間
- 22日間
- 工事費
- 430万円
リフォームのきっかけ
ご実家から独立されたご夫婦とお子様が再び利便性の高いご実家でお父様と二世帯で暮らしたい。
プランナーからのコメント
- 札幌本店
プランナー - 荒井優子
リフォームした部位
-
- 部位
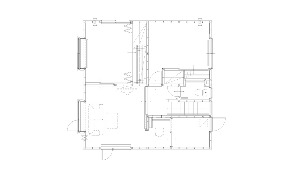
- 2階 リビング
アクセントカラーのブルーが綺麗な爽やかなリビング
-
- 部位
- 2階 リビング・階段ホール
2階リビングの奥行を感じられるように階段ホールの空間を一体とする。既存の梁の架け替えが無くて済む様、間仕切り建具をアウトセットで納めている
-
- 部位
- 書斎スペース
リビングから納戸への距離感を出す為、書斎スペースを設けた。閉塞感が出ないようにガラスブロックを配している
-
- 部位
- 2階 リビング
広さとプライバシーをコントロールできる引戸の間仕切り
-
- 部位
- 子供部屋
-
- 部位
- 寝室
-
- 部位
- トイレ
-
- 部位
- ニッチ
-
- 部位
- お子さんの絵も可愛いインテリアに


既存窓を活かした狭小地のプライバシー・明るさ確保のプラン+断熱を心がけました。子世帯のリビングを2Fに設け、寛げるように設計しています。ホール・書斎・洋室を一体の空間として奥行を感じられるよう開閉間仕切りとしました。ホール~息子さんのお部屋~リビングのプライバシー確保+冬季寒さ対策しています。
プランナーのプロフィールへ