コンクール受賞歴
2013年 ジェルコリフォームデザインコンテスト 東北支部 優秀賞
Data
- 家族構成
- 6人
- 築年数
- 30年
- 構造
- 木造平屋
- 工事面積
- 193.5㎡
- 施工期間
- 60日
- 工事費
- 1,400万円
リフォームのきっかけ
・耐震面を強化したい。暖かくしたい。
・玄関からすぐの居間が明かりが届かず暗い。親戚が大勢集まると狭い為、居間を広くし明るい空間にしたい。
・水廻りを一新し使いやすくしたい。トイレを広くしたい。
・子供部屋が欲しい。
・使用していたケヤキの建具を使いたい。
・ミニカーを飾るスペースが欲しい。
プランナーからのコメント
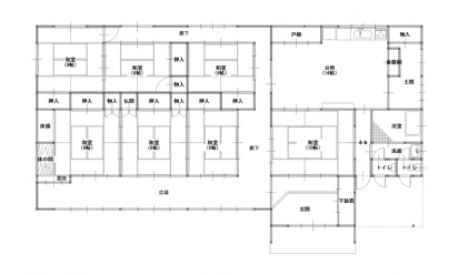
一つ一つが個室で、明かりの届きにくい間取りを改善させる為、できるだけ窓に面した部屋となるよう部屋の位置を検討しました。既存の天井や昔から使用している思い入れのある建具など残せるように、使う場所や用途を細かく打ち合わせし、雰囲気を壊さないよう配慮しました。
耐震面と動線を見直し、ご両親の寝室と水廻りの位置を注意しました。暖かい空間を通って水場へ移動できるよう間取りを工夫しました。
長期優良住宅のリフォームを採用し、窓・断熱材を改善させ、断熱面の改善・気密性の向上を図りました。
畑仕事から帰ってきた際、靴のまま入れる土間スペースをキッチン近くに設け、土の付いたものも保管しやすい収納スペースとしました。
リフォームした部位
-
- 部位
- 居間
-
- 部位
- キッチン・ダイニング
-
- 部位
- トイレ
-
- 部位
- 土間スペース
-
- 部位
- ミニカー展示
-
- 部位
- ダイニング
-
- 部位
- 外観


施主様のご感想
・両親の部屋から水場が近く使いやすい。
・冬場の寒さが軽減され、居心地が良くなった。
・居間を窓に面した場所へ移動した事で、以前は玄関の前にあった居間が明るくなった。 急な来客があっても安心。