Data
- 家族構成
- 夫婦、子供3人
- 築年数
- 15年
- 構造
- SRC造
- 工事面積
- 82㎡
- 工事費
- 700万円
リフォームのきっかけ
14年前に築1年の中古マンション購入。購入時は夫婦2人だったが、家族が増え5人家族になった。子供達(中学生1人、小学生2人)も成長し、平等に自分たちの部屋を持たせてあげたい。水廻り住宅設備機器の交換を希望。窓廻りの結露対策。
プランナーからのコメント
- 旭川支店
プランナー - 米島一朗
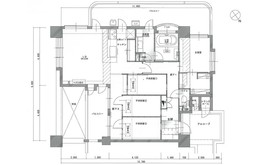
空部屋の2部屋を改築し、3室と廊下を計画。2つの掃き出し窓からの採光を廊下を介して子供部屋に取り入れた。子供達には平等に部屋を確保するのとともに、冷暖房にも考慮し天井埋込型のエアコンをそれぞれ設置。各部屋に換気窓を設け、通風にも配慮。
プランナーのプロフィールへリフォームした部位
-
- 部位
- ダイニング・キッチン
ダイニングのテーブルは子供たちの勉強スペースとしても活用。 各子供部屋にはこのLDKを通って入るように計画した。
-
- 部位
- リビング・ダイニング
家族5人が集まるLDK、コミニュケーションの場となっている。
-
- 部位
- ダイニング・キッチン
-
- 部位
- 廊下
光の入る掃き出し窓に面し、3室の子供部屋を配置。
-
- 部位
- 子ども部屋
各子供部屋は平等に同じ大きさとし、採光窓を設置。天井には冷暖房エアコンを設置し温熱環境にも配慮。
-
- 部位
- 廊下
各子供部屋に換気窓を設置し通風に配慮した。
-
- 部位
- 廊下


施主様のご感想
長男:「部屋の大きさは十分で、狭くは感じない。」主人:「各子供部屋に採光が行きわたり十分明るい。」奥様:「リビングを通って各部屋に行くので子供達とコミュニケーションがとれる。」