
マンションリフォームを検討する中で、一番気になるのは費用のことではないでしょうか。
特に70平米以上の比較的広い面積のマンションの場合は、「予算内でどの程度のリフォームができるのか」が気になることと思います。
そこで全国で77,000件以上のリフォーム実績を持つ土屋ホームトピアが、以下の項目をわかりやすく解説します。
| このコラムのポイント |
|---|
|
予算に合うリフォームプランを組み立てるための情報を紹介するので、ぜひ最後までご覧ください!
目次
マンションリフォーム事例|70平米〜100平米の費用

はじめに、実際にマンションをリフォームした事例を紹介します。
面積70平米〜100平米の事例をピックアップしてリフォーム費用・内容を紹介するので、ぜひ参考にしてください。
※掲載しているリフォーム費用はお引き渡し当時のリフォーム価格です。同じ価格でのリフォームを保証するものではありませんので、あらかじめご了承ください。
【70平米台のマンション】
はじめに、70平米〜80平米未満のマンションリフォーム事例を紹介します。
【70平米、1,317万円】
こちらは、断熱性能向上による結露対策を中心としたマンションリフォーム事例です。
| リフォーム概要 | |
|---|---|
| 面積、費用 | 70平米、1,317万円 |
| 世帯人数 | 1人 |
| 築年数 | 20年 |

〈関連ページ〉キッチンを移動し間取り変更 空気の通り・視線の抜けを快適にしたマンションフルリフォーム
間取りを、3LDKから1LDKに変更しています。
「部屋数が多く、室内移動の際に何度もドアを開閉するのが面倒」という施主様のお悩みを解消したほか、テレワークの際に仕事とプライベートの切り替えをしやすい間取りにフルリノベーションしました。
〈関連ページ〉キッチンを移動し間取り変更 空気の通り・視線の抜けを快適にしたマンションフルリフォーム
【73平米、1,212万円】
こちらも、断熱性能向上による結露対策を中心としたマンションリフォームを実施した事例です。
| リフォーム概要 | |
|---|---|
| 面積、費用 | 73平米、1,212万円 |
| 世帯人数 | 4人 |
| 築年数 | 22年 |

〈関連ページ〉家族の距離間
間取り変更によって、ご家族それぞれが1人で過ごせる空間を確保しました。
ご夫婦はキッチン周辺・お子様は小上がりタタミとロフトで、プライベートな時間を過ごせる間取りが完成しています♪
〈関連ページ〉家族の距離間
【74平米、600万円】
こちらは、ペットとの暮らしで傷んだ内装改修を中心としたマンションリフォーム事例です。
| リフォーム概要 | |
|---|---|
| 面積、費用 | 74平米、600万円 |
| 世帯人数 | 2人 |
| 築年数 | 29年 |

〈関連ページ〉MOON LIGHT〜豊かな曲線が優しい思い出となる部屋〜
間取り変更のほか、LDKの下がり天井に梁型を造作して間接照明を設置し、ゆったりと過ごせるデザインの空間が完成しました。
〈関連ページ〉MOON LIGHT〜豊かな曲線が優しい思い出となる部屋〜
【75平米、550万円】
こちらは、施主様お手持ちのインテリアに合う内装デザインを徹底追求した、マンションリフォーム事例です。
| リフォーム概要 | |
|---|---|
| 面積、費用 | 75平米、550万円 |
| 世帯人数 | 2人 |
| 築年数 | 21年 |

〈関連ページ〉手持ちインテリアに合わせた終の棲家
お子様の独立をきっかけに、間取りもご夫婦の暮らしにフィットするよう変更しています。
〈関連ページ〉手持ちインテリアに合わせた終の棲家
【77平米、950万円】
こちらは、生活リズムの違うご家族が気兼ねなく過ごせる間取りを実現したリフォーム事例です。
| リフォーム概要 | |
|---|---|
| 面積、費用 | 77平米、950万円 |
| 世帯人数 | 3人 |
| 築年数 | 19年 |

〈関連ページ〉こどもの命を救う間取り
夜勤のあるご家族が深夜に帰宅した際に、LDK内で過ごせるように配慮した間取りに変更しています。
〈関連ページ〉こどもの命を救う間取り
【80平米台のマンション】
次に、80平米〜90平米未満のマンションリフォーム事例を紹介します。
【80平米、1,100万円】
こちらは、住宅設備交換と住宅性能向上を中心としたマンションリフォーム事例です。
| リフォーム概要 | |
|---|---|
| 面積、費用 | 80平米、1,100万円 |
| 世帯人数 | 4人 |
| 築年数 | 32年 |

〈関連ページ〉これからも住むぞ!築32年マンションリフォーム計画
LDKから個室まで、1台のエアコンで空調ができる間取りに変更しています。
〈関連ページ〉これからも住むぞ!築32年マンションリフォーム計画
【82平米、700万円】
こちらは、お子さま1人1人の個室を設けることを目的として間取り変更をしたマンションリフォーム事例です。
| リフォーム概要 | |
|---|---|
| 面積、費用 | 82平米、700万円 |
| 世帯人数 | 5人 |
| 築年数 | 15年 |
LDKを通って子ども部屋に出入りする動線の間取りです。
お子さんの個人のプライベートを守る子ども部屋が完成しましたが、外壁に接していないため採光・通風を確保するために室内窓を設けました。
〈関連ページ〉2部屋÷3人=子供部屋
マンションの部屋を増やす方法を、こちらの記事で確認できます。
〈関連ページ〉マンションリフォームで部屋を増やす方法、費用など事例紹介|子供部屋を増やす注意点も解説
【85平米、900万円】
こちらは、使い勝手の悪さを感じていたご自宅マンションを、暮らしやすさを重視してリフォームした施工事例です。
間取りの調整に伴って、デザイン性も向上しています♪
| リフォーム概要 | |
|---|---|
| 面積、費用 | 85平米、900万円 |
| 世帯人数 | 2人 |
| 築年数 | - |

〈関連ページ〉生まれ変わったくつろぎ空間
部屋が細かく分かれた間取りを現在のライフスタイルに合わせて変更し、バスルームもサイズアップしています。
〈関連ページ〉生まれ変わったくつろぎ空間
【85平米、1,400万円】
こちらは、ご家族間のコミュニケーションと住宅性能向上を重視したマンションリフォーム事例です。
| リフォーム概要 | |
|---|---|
| 面積、費用 | 85平米、1,400万円 |
| 世帯人数 | 4人 |
| 築年数 | 22年 |

〈関連ページ〉母娘で料理を楽しむ住まい
ご家族が一緒にキッチンに立つ際にスムーズに動けるよう、アイランドキッチンに変更しています。また、ファミリークローゼットを設ける・和室のタタミ下を収納にするなど、収納容量アップにもこだわりました。
〈関連ページ〉母娘で料理を楽しむ住まい
【88平米、460万円】
こちらは、音楽に包まれた暮らしができる空間づくりを重視して、ご自宅マンションをリフォームした事例です。
内装デザインに凹凸を取り入れたことで照明による陰影が生まれ、奥行きと重厚感のある空間となりました。
| リフォーム概要 | |
|---|---|
| 面積、費用 | 88平米、460万円 |
| 世帯人数 | 2人 |
| 築年数 | 24年 |

〈関連ページ〉昼の明るさと夜の暗さを愉しむ住まい~光と影と音楽と~
現在のライフスタイルを満喫できるように間取りを変更して、ウォークスルークローゼットや書斎を設けています。


〈関連ページ〉昼の明るさと夜の暗さを愉しむ住まい~光と影と音楽と~
【90平米〜100平米のマンション】
最後に、90平米〜100平米以下のマンションリフォーム事例を紹介します。
【92平米、960万円】
こちらは、マンション最上階特有のつくり(天井が高い、窓が大きい)による「夏暑く・冬寒い」住環境を改善したリフォーム事例です。
| リフォーム概要 | |
|---|---|
| 面積、費用 | 92平米、960万円 |
| 世帯人数 | 3人 |
| 築年数 | 20年 |

〈関連ページ〉最上階のお困りごと解決
断熱性・気密性を向上させる施工、換気経路を意識した換気システム採用などで、1年を通して快適に暮らせる住宅となりました。
〈関連ページ〉最上階のお困りごと解決
【96平米、700万円】
こちらも、マンション最上階のリフォーム事例です。
「天井裏に活用できる空間がある」という最上階特有のメリットをいかし、LDK内の天井を高くしてロフト付き納戸を造作しました。
| リフォーム概要 | |
|---|---|
| 面積、費用 | 96平米、700万円 |
| 世帯人数 | 2人 |
| 築年数 | 20年 |

〈関連ページ〉マンション最上階のメリット
個室の広さを調整して収納を設けることで、住宅全体の収納容量が大幅にアップしています。
〈関連ページ〉マンション最上階のメリット
【99平米、1,300万円】
こちらは、可変性のある間取りへの変更と住宅性能向上を重視したマンションリフォーム事例です。
断熱機能だけでなく換気機能も兼ね備える内窓(DI窓)を採用し、結露・カビなどの悩みを解消しました。
| リフォーム概要 | |
|---|---|
| 面積、費用 | 99平米、1,300万円 |
| 世帯人数 | 3人 |
| 築年数 | 22年 |

〈関連ページ〉実証実験で結露解消!
換気機能を持つ内窓(DI窓)は、高断熱・結露解消・カビ発生抑制などの機能を持つハイブリット窓です!詳しくはこちらでご確認ください。
LDK内に可動式間仕切りを設置したことで、お子さまの帰省時に個室をつくれる可変性のある間取りとなりました。
〈関連ページ〉実証実験で結露解消!
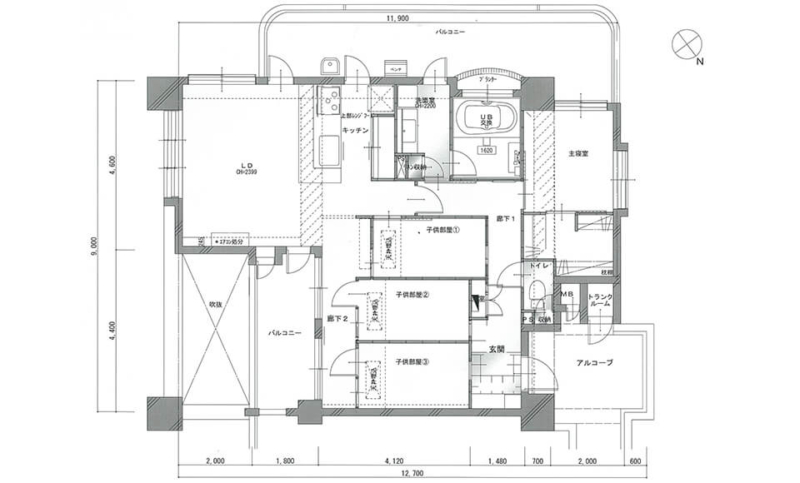
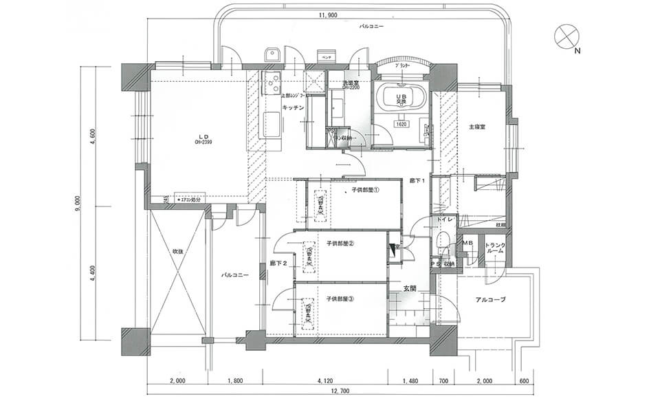
【100平米、1,400万円】
こちらは、住宅性能向上、床の段差解消、水回り交換などを実施し、デザイン性も向上させたマンションリフォーム事例です。
| リフォーム概要 | |
|---|---|
| 面積、費用 | 100平米、1,400万円 |
| 世帯人数 | 4人 |
| 築年数 | 19年 |

〈関連ページ〉マンションの梁型につける間接照明の効果
家の中心に長い廊下がありましたが、廊下を最小限にすることで広々としたLDKとなりました。
LDKの中心にある大きな下がり天井に梁型と間接照明を加えて、縦に広がりを感じる空間づくりが成功しています。
〈関連ページ〉マンションの梁型につける間接照明の効果
70平米〜100平米と条件を絞り、マンションリフォームの事例を紹介してきました。
リフォーム費用が面積と比例しないことに、お気づきの方も多いのではないでしょうか。
マンションリフォームの費用は、リフォーム部位の組み合わせなどによって変動します。
次にリフォーム部位ごとの費用相場を紹介するので、予算に応じたリフォームプランを組み立てる際の参考にしていただけると幸いです。
今回紹介したのは、すべて土屋ホームトピアの施工事例です。
土屋ホームトピアは高い技術力とデザイン力を持つリフォーム会社で、ご家族の予算とご希望に沿うリフォームプランを提案いたします。
※当社はしつこい営業を一切行っておりません。ご安心ください。
※全国各地に拠点がございます。
土屋ホームトピアには、今回紹介しきれなかった施工事例がたくさんあります。ぜひご覧ください。
〈施工事例〉
マンション部位ごとの費用相場・寿命一覧表|フルリフォームの費用相場も紹介

マンションリフォームは、予算に合わせて優先順位を決めてプランを組み立てることが可能です。
リフォーム部位ごとの費用相場を、一覧表で確認しましょう。
リフォーム部位ごとの費用相場・寿命一覧表
マンションのリフォーム部位ごとの費用相場・寿命の目安は、以下のとおりです。
| リフォーム概要 | 費用相場 | 寿命の目安 |
|---|---|---|
| キッチン | 約50万~250万円 | 10年前後 |
| トイレ | 約20万~50万円 | 15年前後 |
| バスルーム | 約60万~200万円 | 20年前後 |
| 間取り変更 | 約30万~400万円 | - |

詳しくはリフォームを依頼する施工業者に確認しましょう。
マンションをフルリフォームする費用相場
マンション部位ごとのリフォーム費用相場を確認しましたが、部分的にではなくフルリフォームをご希望の方も多いのではないでしょうか。
フルリフォームの費用は施工業者・地域によって違うため、例として土屋ホームトピアのマンションフルリフォームの費用相場を紹介します。
| マンションフルリフォームの費用相場 |
|---|
【例:土屋ホームトピア】
|
フルリフォームの費用も、リフォーム内容などによって大きく変動します。
詳しくはリフォームを依頼する施工業者に問い合わせましょう。
番外編:300万円でどこまでリフォームできる?
予算300万円でマンションリフォームをする場合には、以下のようなプランが考えられます。
| 予算300万円のマンションリフォーム |
|---|
|

また、アイデア次第でリフォーム費用を抑えることも可能なので、次に紹介します。
マンションリフォームの費用を抑える5つのアイデア

マンションリフォームの費用を抑えるアイデアは、以下のとおりです。
- リフォームの希望を明確にする
- 2〜3社と打ち合わせを実施し、見積もり作成を依頼
- リフォーム時期を施工業者に任せる
- DIYを組み合わせる
- 補助金を活用
それぞれ、わかりやすく解説します。
予算・優先順位を明確にする
予算・優先順位を明確に伝えることで、施工業者が「今回実施するべき工事・先延ばしできる工事」を分けて考えやすくなります。

2〜3社と打ち合わせを実施し、見積もり作成を依頼
複数の施工業者と打ち合わせをすることで、費用・対応・アフターフォローを比較できます。
「知り合いの1社のみに見積作成をして、適正価格かどうかわからない」とお悩みのケースがたくさんあるため、ぜひ2〜3社と打ち合わせを実施&見積もり作成を依頼したうえで、最終的に依頼する施工業者を決めてください。
リフォーム時期を施工業者に任せる
建築需要が高まっている時期・地域などでは、施工技術者の人件費が高騰するのが一般的です。
- 公共事業による建築需要が高まっている時期
- 地震などの被害を受けた地域 など

DIYを組み合わせる
DIYをすることで、施工技術者の人件費を節約するという方法もあります。

土屋ホームトピアには、「費用を抑えてリフォームをしたい。DIYできる部分があれば施工方法を教えてほしい」という要望もご相談いただけます♪
お近くの拠点に、お気軽にお問い合わせください。
※当社はしつこい営業を一切行っておりません。ご安心ください。
※全国各地に拠点がございます。
補助金を活用
リフォーム内容によっては、補助金を活用して費用負担を軽減できる可能性があります。
| リフォームに活用できる補助金例 |
|---|
|
※2024年1月時点の情報です。

マンションリフォームの費用を抑える方法を紹介してきました。
ぜひ予算とリフォーム内容のバランスを重視しながら、適切なプランを提案してくれる業者を選んでください!
マンションリフォーム特有の注意点

最後に、マンションリフォーム特有の注意点も紹介します。
マンションは集合住宅なので、戸建てリフォームとは違う注意点があります。
| マンションリフォームの注意点 | |
|---|---|
| 管理規約の確認が必須 | ・リフォームOKの部位・NGの部位がある ・リフォームに使う建材が決まっているケースがある |
| マンションの構造を確認 | 構造によって間取り変更・水回り位置変更の自由度が違う |
| 管理会社や管理組合へ届け出が必要 | マンション全体にリフォームの期間・内容などを告知する必要がある |
| 隣接する部屋などに挨拶が必要 | 音・施工業者の出入りなどに関するトラブルが起きないよう配慮する必要がある |
マンションリフォームの実績が豊富な施工業者ほど、上記のような注意点に関する対応もスムーズなのが一般的です。
またこれからマンションを購入してリフォームをする場合には、理想のリフォームが実現するかを相談できるよう、早い段階で施工業者を決めるのがおすすめです。
こちらの動画でも、マンションリフォーム特有の注意点を紹介しています。
土屋ホームトピアは、物件探しから施工・アフターフォローまで、ワンストップでご依頼いただけるリフォーム会社です。
全国に拠点がございますので、お近くの拠点にお問い合わせください。
※当社はしつこい営業を一切行っておりません。ご安心ください。
※全国各地に拠点がございます。
まとめ
マンションリフォームについて、以下の項目を解説してきました。
| コラムのポイントまとめ |
|---|
|
マンションリフォームのバリエーションは豊富です。
予算に応じて希望を叶えるプランを組み立てることが可能ですので、ぜひ今回紹介した情報を参考にして施工業者を選び、理想のマイホームを完成させてください!
お気軽にお問合わせください!
リフォーム相談BOOKカテゴリ



























